Brandschutzelement K90-18017 Typ BSE-K90

  • Feuerwiderstandsklasse: Widerstandklasse K90-18017
  • Standarddurchmesser: NW 100/125/160 und 200
  • Flammendichtheit: Größtmögliche Dichtheit zwischen den Isolationsmassen, Körper und Flügelklappen, Flammenstabilität.
  • Geräuscharm: Lufttechnisch günstiges Profil. Integrierte Absperrvorrichtung, keine Störung der Luftströmung. 

Strulik Absperrvorrichtungen Typ: BSE erfüllt in idealer Weise die Funktion einer Absperrvorrichtung der Widerstandsklasse K90-18017.

Die Absperrvorrichtungen können in Wände und Decken montiert werden. Es werden keine besonderen Befestigungsarten benötigt (Rohreinschub). D. h. Zeitgewinn und enorme Wirtschaftlichkeit. Die Absperrvorrichtungen dürfen in Lüftungsanlagen nach DIN 18017-3 für Zu- und Abluft in- und außerhalb von F90-/F30-Schachttrennwänden, L90-/L30-klassifizierten oder systemgeprüften Kanälen mit oder ohne Vermörtelung (Nass- oder Trockeneinbau) verwendet werden.

Die Absperrvorrichtungen dürfen in Wohnungsküchen verwendet werden.

Wrasenabzugshauben (Hauben ohne eigenen Ventilator), die Bestandteile von Zentrallüftungsanlagen nach DIN 18017-3 sind, dürfen an diese AbsperrAbsperrvorrichtungen angeschlossen werden.

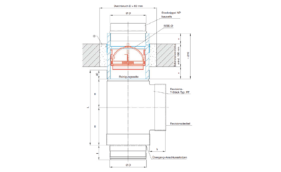
(Einbausituation gleiche wie bei WBE-K90)

 

Einbausituationen

Einbau in Schachtwände
Einbau außerhalb von Schachtwänden
Einbau in Decken inklusive Revisionsmöglichkeit

Dokumente

Folgen Sie uns

  • Strulik Xing
  • Strulik LinkedIn
  • Strulik Instagram
  • Strulik Facebook
  • Strulik Tiktok

Kununu Top Company

  • Kununu Top Company 2023
  • Kununu Top Company 2024
  • Kununu Top Company 2025
  • Kununu Top Company 2025
Logo Strulik GmbH
Close Navigation